Bungalovy

Domů ›   Realizace   ›   Bungalovy

Dřevostavba bungalov Doksany 2023 Dřevostavba bungalov Doksany 2023 Atypický bungalov zasazený v proluce mezi starými původními domy ve slepé ulici. Z pohledu do ulice, musel být dodržen tradiční uliční ráz daný starou okolní zástavbou tzn. přízemní dům se sedlovou střechou a ,,přístavkem". Naopak pohled, který se otevírá do víceúrovňové zahrady, už mohl být koncipován v moderním duchu. V projektu bylo využito svažitosti pozemku a na zděných pilířích vynesena pohodlná a prostorná terasa s výhledem na řeku a vzrostlé stromy. Pod terasou vznikl zajímavý prostor, který může plnit funkci odpočinkové zóny a úloženého prostoru.

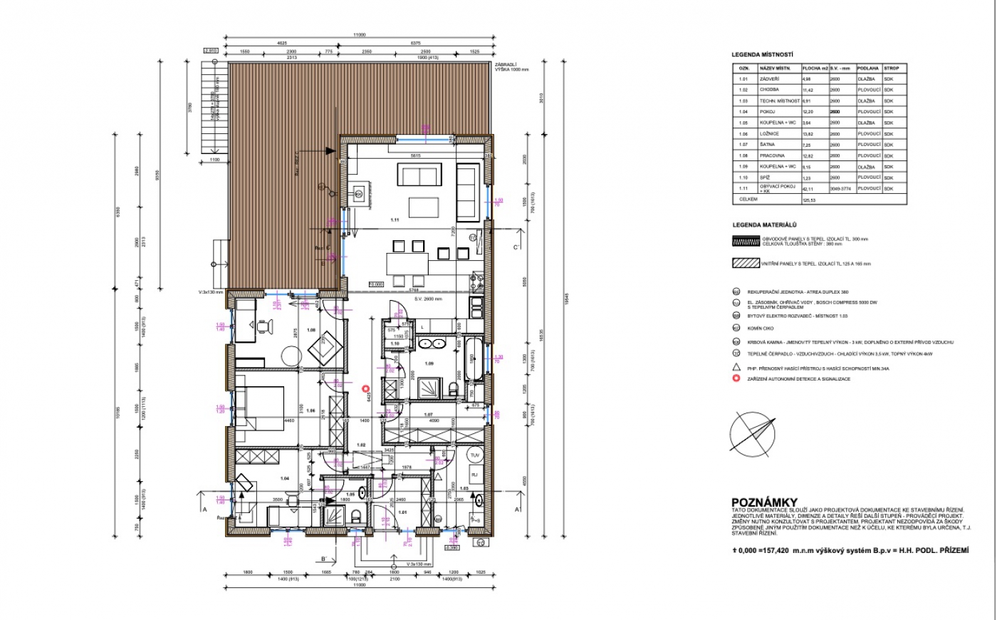
Půdorys dřevostavby
Vizualizace bungalovu
Vizualizace dřevostavby
Doksany
Doksany
Doksany
Doksany
Doksany
Doksany
    +420 603 449 540