Bungalovy

Domů ›   Realizace   ›   Bungalovy

Dřevostavba vizualizace Dřevostavba Bungalov Horní Beřkovice 2010 Malá dřevostavba, která vyrostla na zahradě rodného domu majitelky. Zákaznice zdědila po svých rodičích velký zděný dům s velikou zahradou. Zákaznice je v důchodovém věku, bylo by pro ni náročné se o tak finančně i technicky náročný dům sama starat, rozhodla se tedy rodný dům prodat a část pozemku si oddělit a ponechat pro výstavbu malého, energeticky nenáročného bungalovu, kdy péči o něj zvládá bez starostí a sama. Radost jí pak dělá malá okrasná zahrada o velikosti 400 m2.

Dřevostavba vizualizace
Dřevostavba Horní Beřkovice
Bungalov Horní Beřkovice
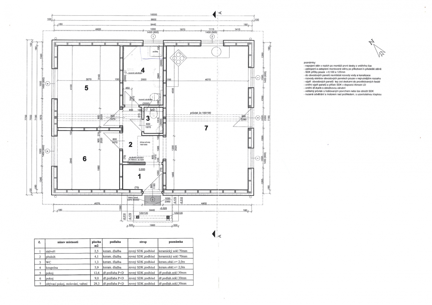
Půdorys domu
    +420 603 449 540