Bungalovy

Domů ›   Realizace   ›   Bungalovy

Dřevostavba bungalov Mimoň 2021 Dřevostavba bungalov Mimoň 2021 Tento moderní dům se nachází v krásné oblasti Českolipska. Po dohodě se zákazníkem jsme zvolili sice konstrukčně náročnější a v konečném důsledku i dražší, ale velice efektní technické řešení, kdy jsme místo původních rovných SDK stropů, přiznali KROV A ZVÝŠILI TAK SVĚTELNOU VÝŠKU MÍSTNOSTÍ. Dům tak dostal spoustu světla, prostoru a energie navíc. Všechny místnosti v domě jsou koncipovány tak, aby se z nich vycházelo na dřevěnou terasu atypického tvaru, která je díky přesahu střechy příjemně zastíněna a není potřeba dodatečná instalace pergoly nebo markýzy.

Vizualizace bungalovu
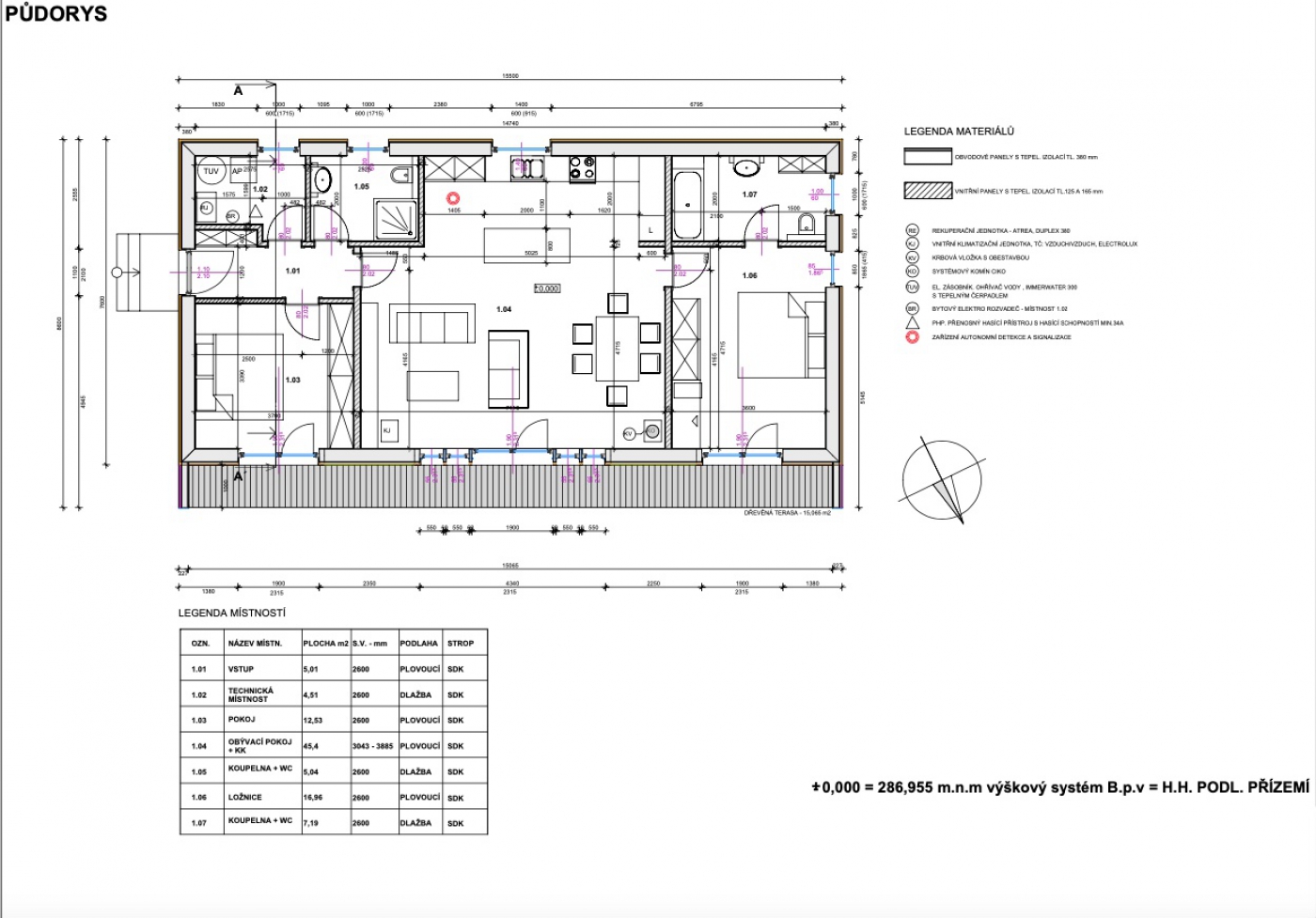
Půdorys dřevostavby
Pohled dřevostavby
Pohled bungalovu
Finální dřevostavba
Prostory domu dřevostavby
    +420 603 449 540