Bungalovy

Domů ›   Realizace   ›   Bungalovy

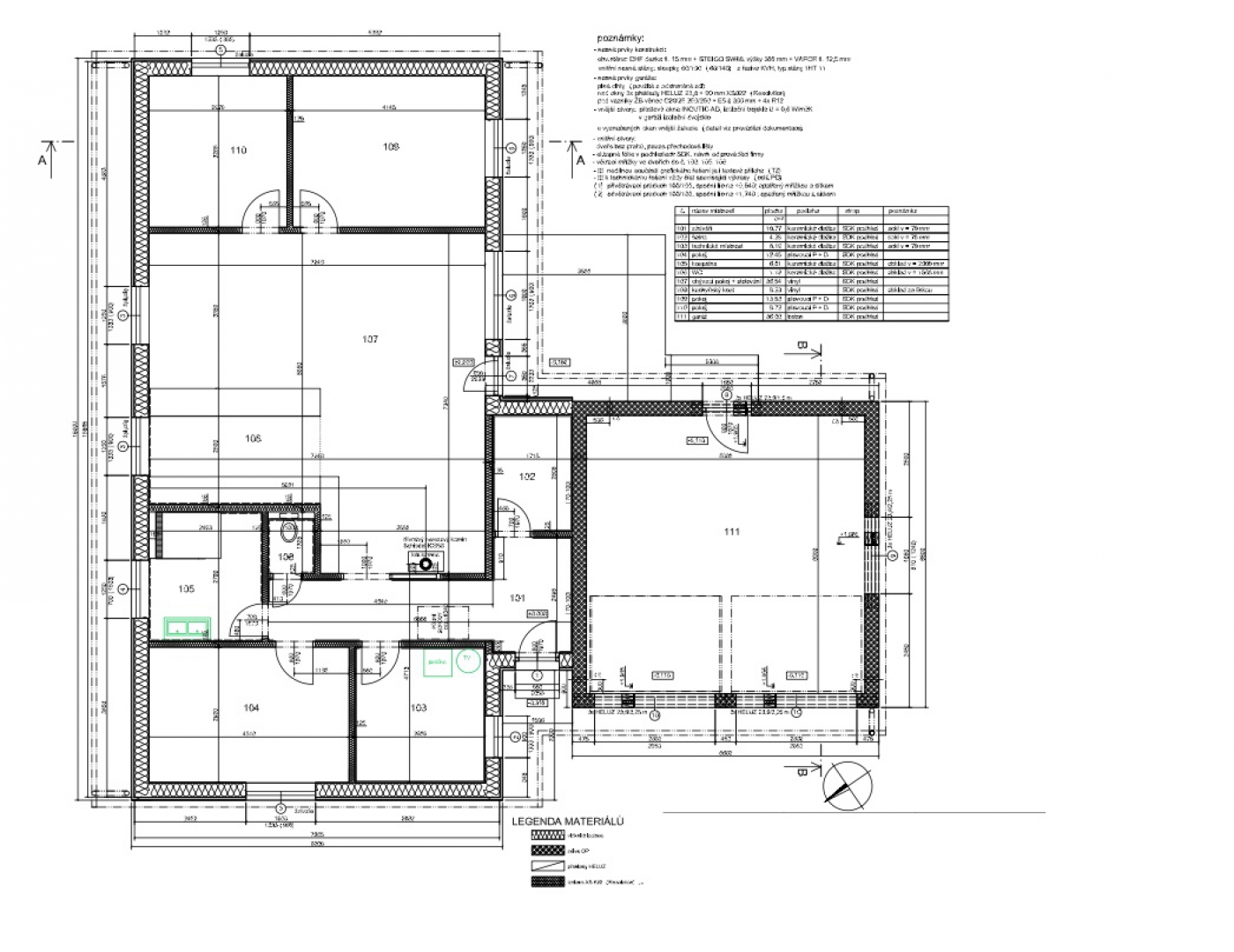
Dřevostavba bungalov Mnětěš 2018 Dřevostavba bungalov Mnetěš 2018 Dřevostavba v malé vesnici pod Řípem. Bylo tedy z hlediska památkářů potřeba dodržet vesnický ráz domu. Tzn. musel například mít světlou fasádu a červenou střechu. Dřevostavba slouží malé rodině s malými dětmi.

Půdorys dřevostavby
Vizualizace bungalovu
Výstavba dřevostavby
Pokoj bungalovu
Finální foto
Finální foto
    +420 603 449 540