Bungalovy

Domů ›   Realizace   ›   Bungalovy

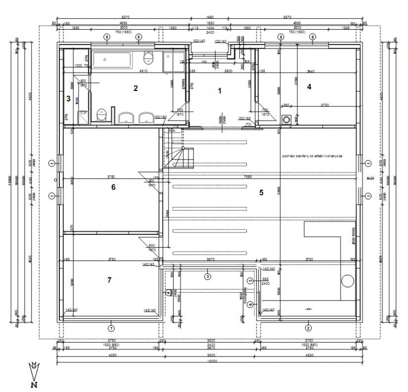
Dřevostavba bungalov Podlusky 2008 Dřevostavba bungalov Podlusky 2008 První dřevostavba postavená naší firmou v ČR ( od té doby realizovala dřevostavby ve Španělsku). Dům má prosklenou jižní část, bylo tedy třeba skleněné plochy odstínit pergolami. Ty v létě dům ochrání před přehříváním a v zimě, když je slunce nízko, nebrání pronikání slunce do interiéru a tím pádem tepelným ziskům. Dům byl koncipován jako bungalov, ale při výstavbě vznikl v II. NP mezonet, který slouží jako herna pro děti.

Půdorys dřevostavby
Vizualizace bungalovu
Finální dřevostavba Podlusky
    +420 603 449 540