Bungalovy

Domů ›   Realizace   ›   Bungalovy

Vizualizace Dřevostavba bungalov Radouň 2023 Dům, který jsme s radostí stavěli pro mladou maminku samoživitelku. Tato žena-bojovnice tvořila místo k žití pro sebe a svou autistickou dceru, proto byl od začátku kladen důraz na co největší jednoduchost domu. Vzhledem k tomu, jak spokojeně se dcera s maminkou zabydlely, soudíme, že záměr se podařilo po všech stránkách naplnit.

Vizualizace
Vizualizace
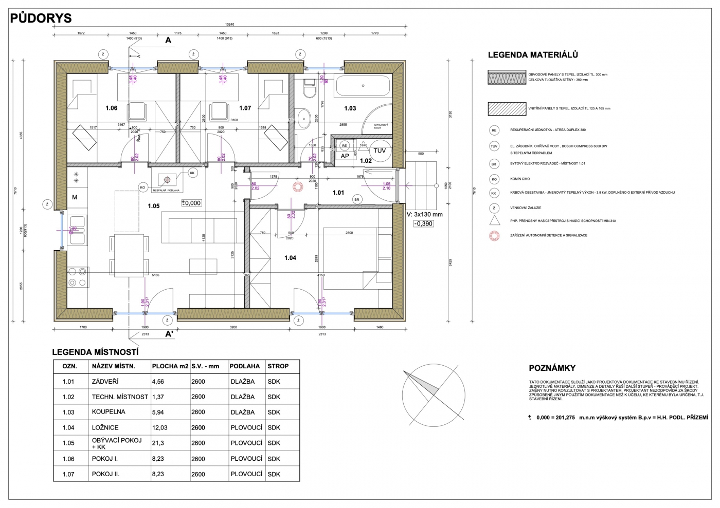
Půdorys
Průběh stavby
Průběh stavby
Průběh stavby
Průběh stavby
Průběh stavby
Průběh stavby
    +420 603 449 540