Bungalovy

Domů ›   Realizace   ›   Bungalovy

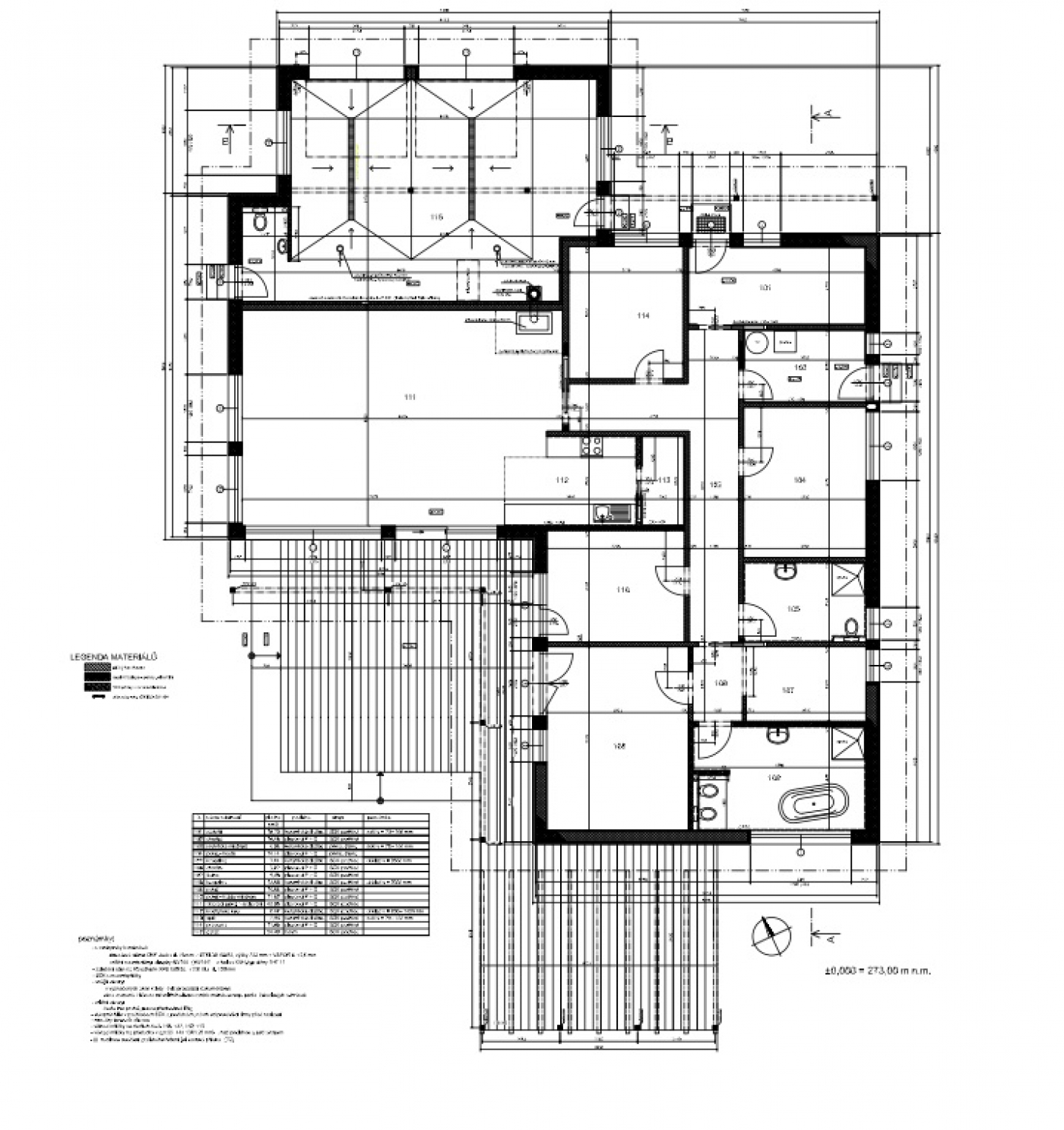
Dřevostavba bungalov Skorotice 2017 Dřevostavba bungalov Skorotice 2017 Velkorysý bungalov s 310 m2 zastavěné plochy. Dům jsme stavěli v nově vzniklé tástavbě u Ústí nad Labem s krásným výhledem do okolních kopců. Pro majitele jsme kromě domu s prostornou dvougaráží zhotovovali i terasu, venkovní zpevněné plochy a oplocení. Po pár letech jsme se na "místo činu" vrátili a dodali ještě zahradní dům.

    +420 603 449 540