Atypické domy

Domů ›   Realizace   ›   Atypické domy

Vizualizace Dřevostavba Ledčice 2024 Na konci září jsme předávali velmi zajímavou dřevostavbu v Ledčicích. Manželský pár se zamiloval do vesnické usedlosti u rybníka. V první fázi uvažovali o rekonstrukci, kterou ale nebylo možné kvůli špatnému technickému stavu realizovat. Přistoupili ke kompromisu a zachovali jen původní hlavní budovu a vedlejší stavby nahradili atypickou dřevostavbou. Novostavba byla architektem navržena citlivě tak, aby si stále zachovávala původní vesnický ráz. Majitelé si přáli do novostavby použít části zachované z demolice (opukové obklady, dřevěné trámy) a tím propojit staré s novým.

Vizualizace
Vizualizace
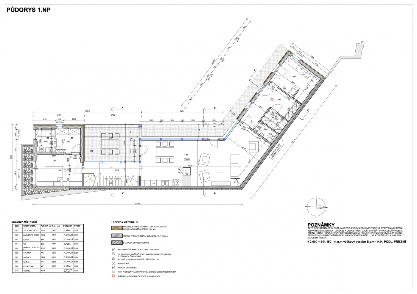
Půdorys I.NP
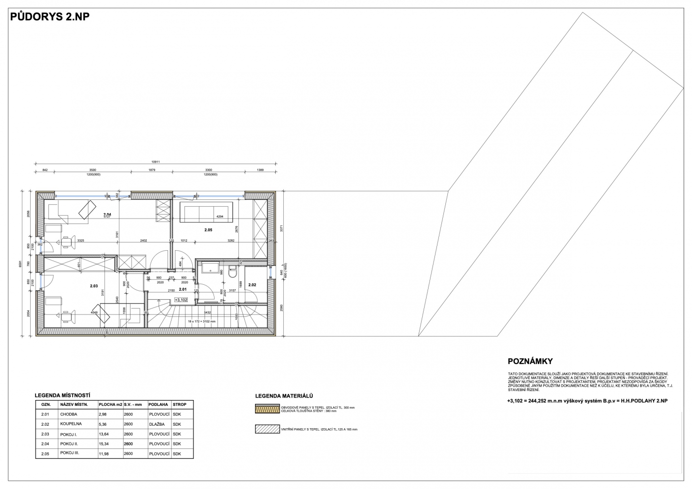
Půdorys II.NP
Průběh stavby
Průběh stavby
Fasáda
Ledčice
Ledčice
Ledčice
Ledčice
    +420 603 449 540