Atypické domy

Domů ›   Realizace   ›   Atypické domy

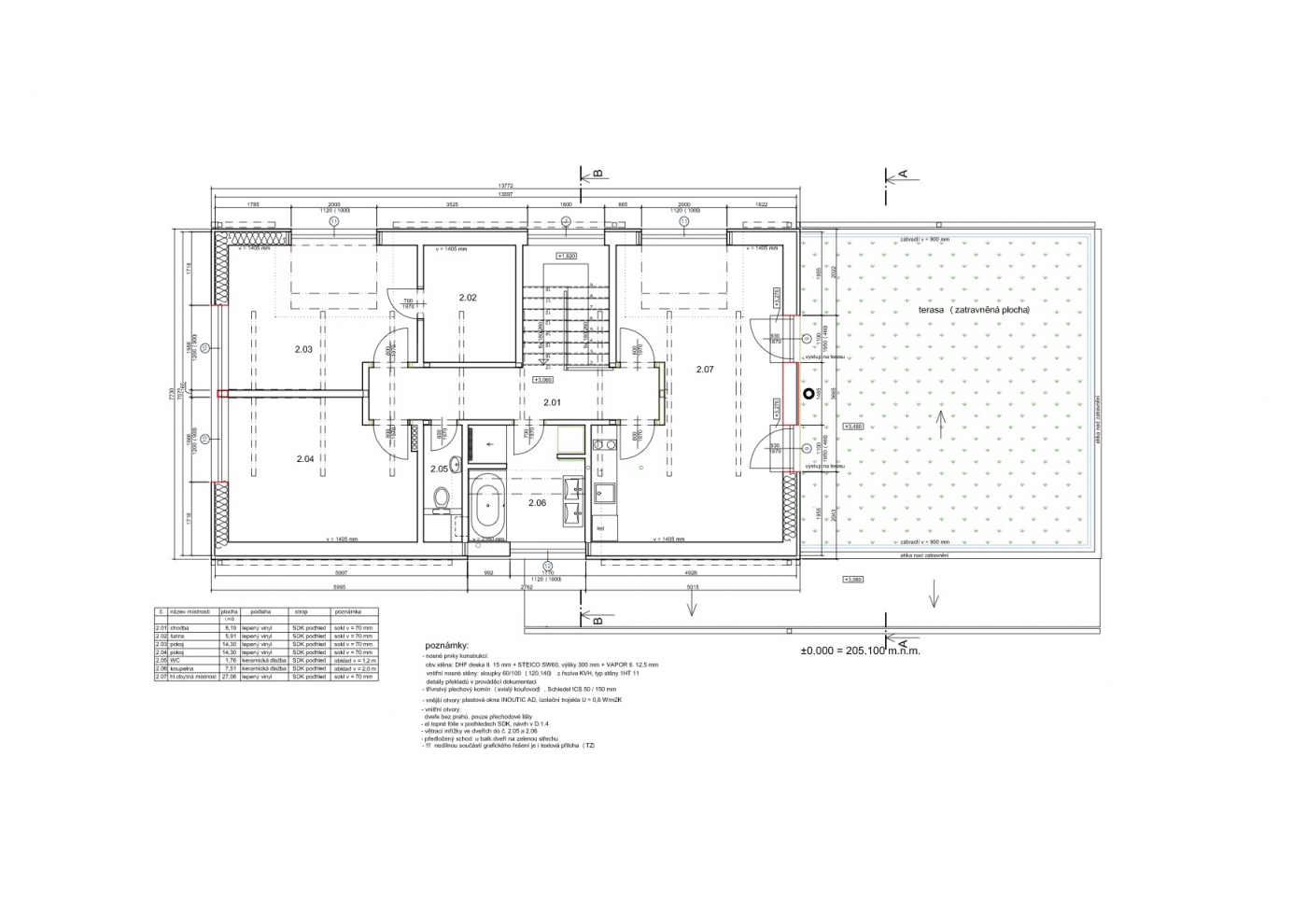
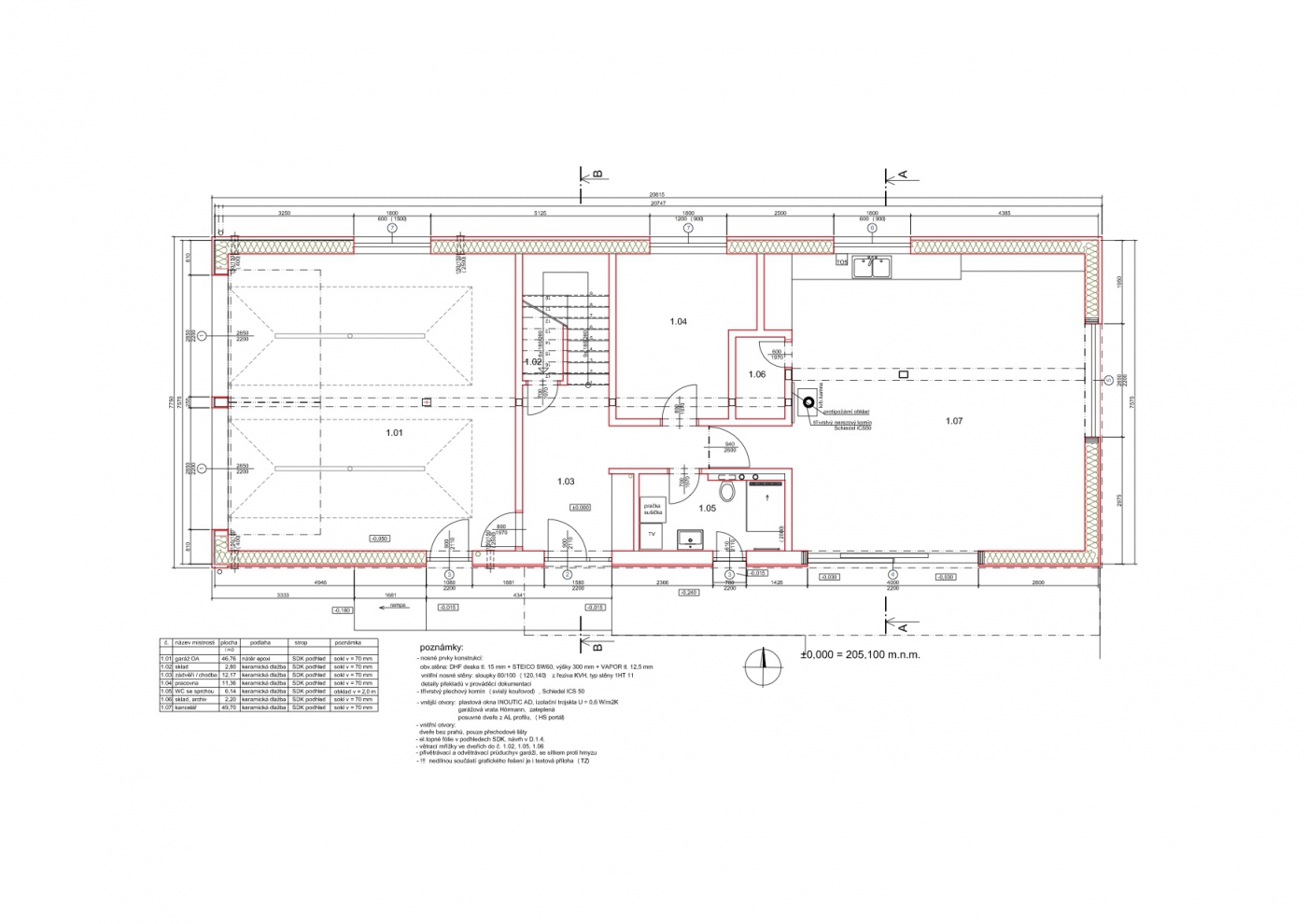
Dřevostavba Louny 2021 Dřevostavba Louny 2021 Atypický a na mnoho technických detailů náročný dům vyrostl v klidné části Loun. Zákazník od začátku věděl, co chce a fázi projektu věnoval opravdu hodně pozornosti a času. Dům je postavený v pasivním standardu, vybavený všemi technologiemi (fotovoltaika, rekuperace, chytré ovládání). Na části domu byla zrealizováné tzv. zelená střecha, má panormatické okno v obývací části a na části fasády byly použity H2O Fermacell desky bez povrchové úpravy, které dotvářejí moderní vzhled domu. Zákazník od začátku spolupracoval také se zahradními architekty a dopředu tak mohlo být počítáno a vše při stavbě připraveno pro budoucí koupací jezírko a zahradu.

Finální foto
Finální foto
Finální foto
    +420 603 449 540