Patrové domy

Domů ›   Realizace   ›   Patrové domy

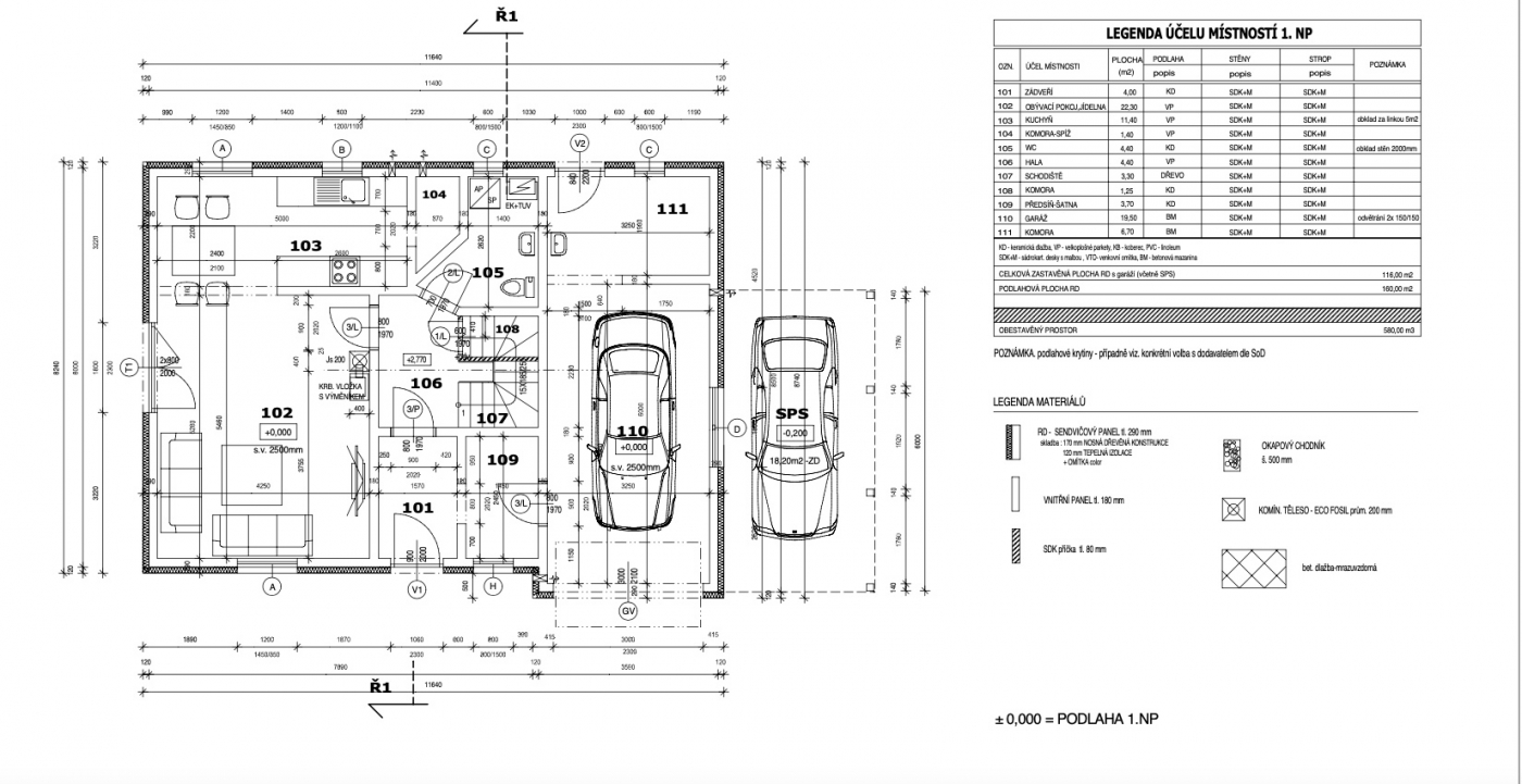
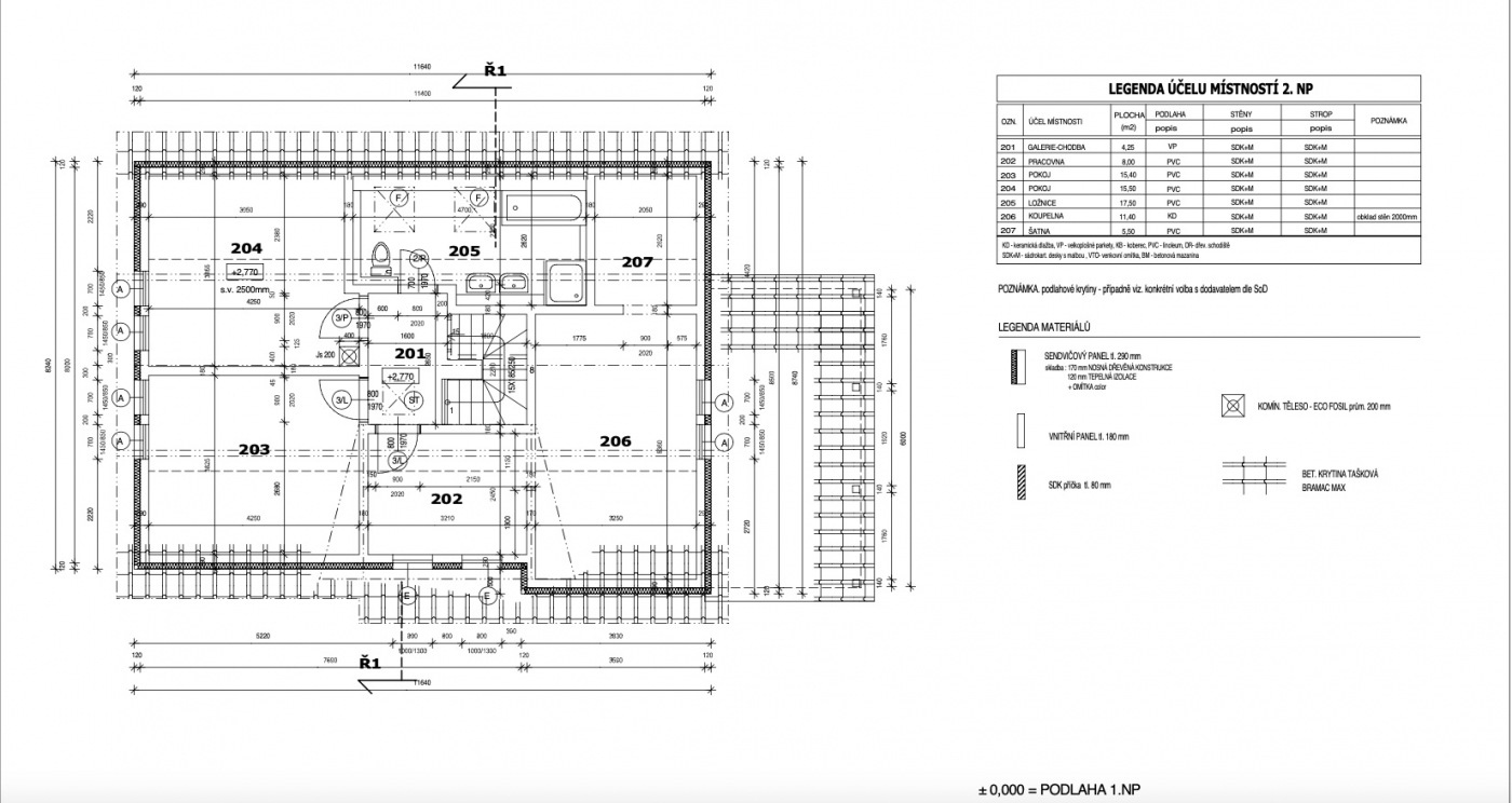
Dřevostavba patrová Děčín 2015 Dřevostavba patrová Děčín 2015 Zákaznice nás oslovila ve chvíli, kdy už měla s jinou firmou vyřízené stavební povolení a zhotovenou základovou desku. Bohužel nenašli společnou řeč a ve zlém se rozešli. Vyprojektovanou dřevostavbu jsme tedy přepracovali do našeho konstrukčního systému, vyřešili s klienty pár nutných změn a detailů a do měsíce jsme začali s výrobou a následně stavbou. Čtyřčlená rodina tak nepřišla o své vysvěné Vánoce v novém.

    +420 603 449 540