Patrové domy

Domů ›   Realizace   ›   Patrové domy

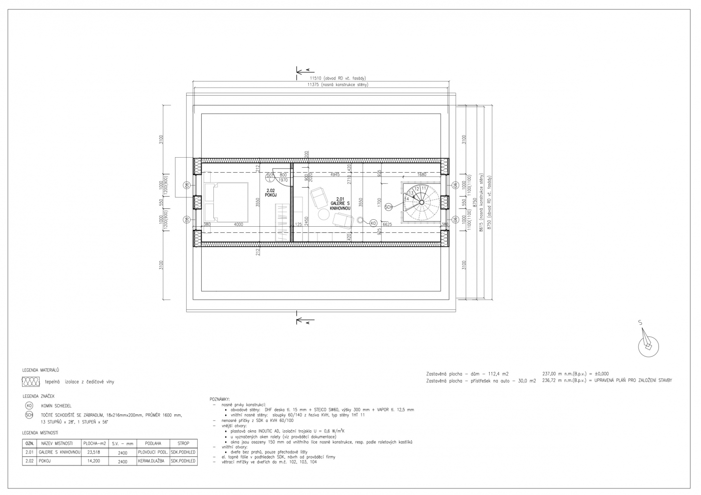
Final Dřevostavba patrová Růžová 2022 Dům, který se nachází v malebném kraji u Hřenska, byl původně projektován jako bungalov, na přání klientů se původní projekt upravil na dům s obytným podkrovím. Dole se tak nachází koupelna, samostatné WC, technická místnosta, dva dětské pokoje a obývací pokoj spojený s kuchyní a východem na prostornou dřevěnou terasu, která je krytá pergolou. V podkroví vznikl světlý a prostorný mezonet, který může sloužit jako herna a v budoucnu odpočinková zóna, na kterou navazuje ložnice rodičů. Dům obývá mladá rodina s dvěma malými dětmi.

Půdorys
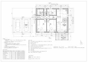
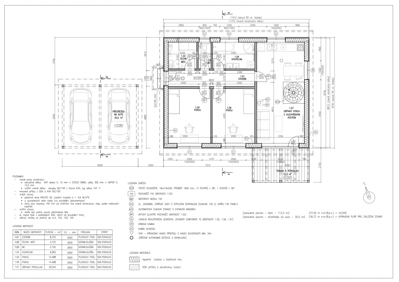
Půdorys
Řez
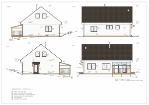
Pohledy
Stavba
Stavba
Final
Final
Final
Final
Final
Final
Final
Final
    +420 603 449 540