Patrové domy

Domů ›   Realizace   ›   Patrové domy

Vizualizace Dřevostavba Patrová Zdiby 2023 Dvoupatrový dům v těsně blízkosti Prahy. Investoři nás oslovili s tím, že jsme stavěli dům jejich známým (Lány) a že se jim dům líbí natolik, že by s pár obměnami vyšli z jejich projektu. Provedli jsme tedy individuální úpravy na přání zákazníka a pustili se do díla. Výsledkem je příjemný dům v klidném prostředí zahrádkářské kolonie s perfektní dostupností do Prahy, kde oba investoři pracují.

Vizualizace
Vizualizace
Vizualizace
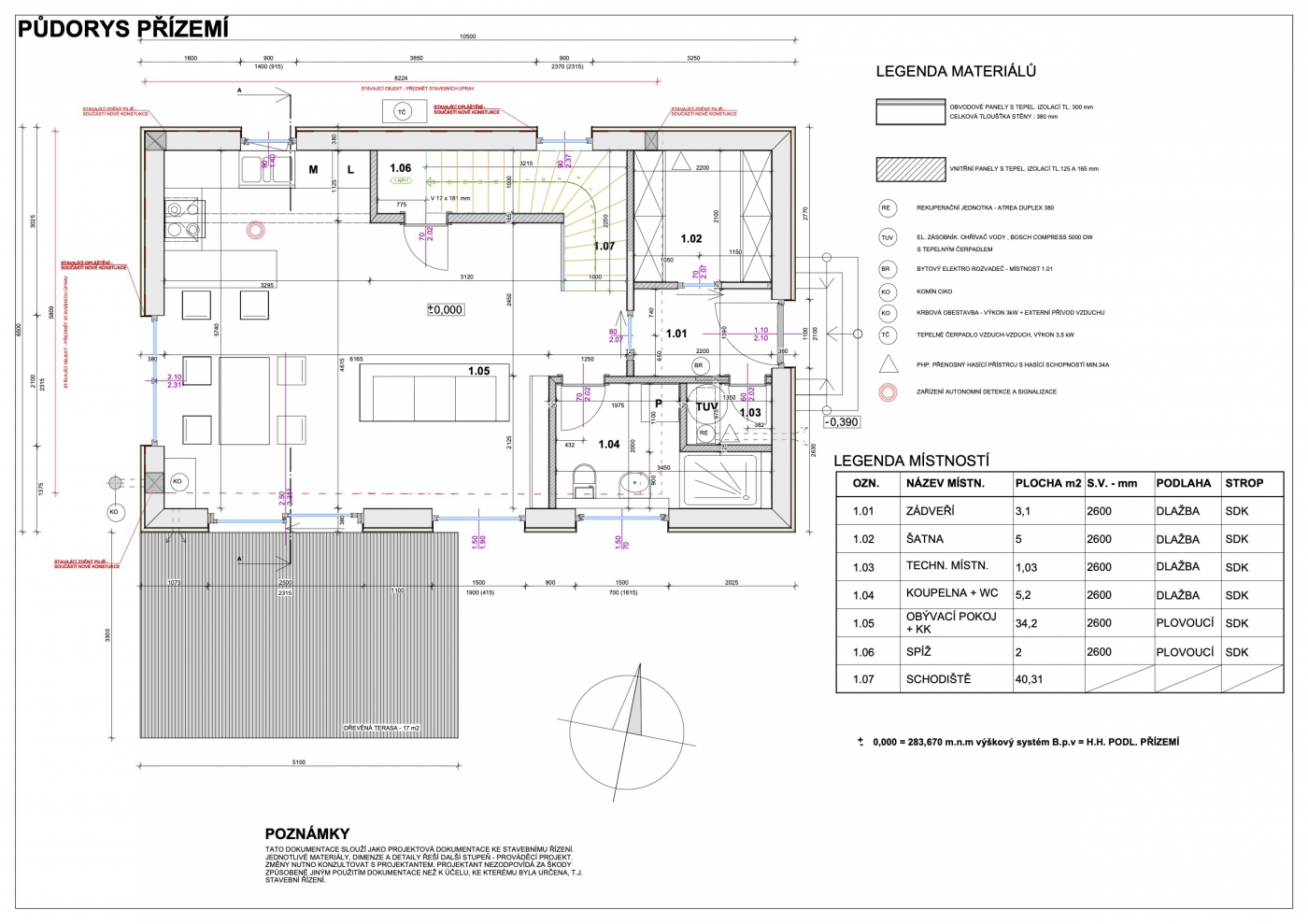
Půdorys přízemí
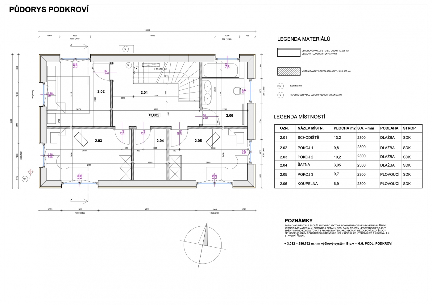
Půdorys podkroví
Řez
Průběh stavby
Průběh stavby
Průběh stavby
    +420 603 449 540